waste card seventh schedule
Kindly call us or drop us an email if you have any. 512 If there is a new category of scheduled waste generated the HR Department shall fill in the 2nd schedule and submit it to DOE within 30 days from the date of generation of the scheduled.
Seventh Schedule Waste Card Sw 410 Pdfcoffee Com
Schedule waste regulation 2005 Environmental Quality Act 1974 and standard operating procedure provided by Ministry of Health Malaysia regulates the management of clinical waste.
. Zink-Carbon batteries - not a scheduled waste. State from which process activity. Never miss yard waste collection again.
Waste normally scheduled for Thursday will be collected on Wednesday November 23. Waste generator shall provide information in accordance with 7th Schedule WASTE CARD to the contractor together with the wastes Waste generator shall inform the contractor the purpose. GEMILANG KAW PERINDUSTRIAN SG PULOH KLANG SELANGOR.
Seventh Schedule Regulation 13 Dispose Container SW 409 Information CRESCENT ENGINEERING M SDN BHD NO. Personally Id call it WSDS Waste Safety Data Sheet - sounds handy right. Defence of India and every part thereof including preparation for defence and all such acts as may be conducive in times of war to its.
Most households follow a once-a-week trash collection schedule. Any matter prescribed to be scheduled waste or any matter whether in solid semi-solid liquid form or in the form of gas or vapor which emitted discharged or deposited in. Certified that heshe has not resigned from Government service with prior.
Format terbaru untuk label bahan kimia bagi tujuan pelupusan. Regulation 13 Dispose Container Sw 409 Information. Use our Trash and Recycling Collection Day App to find your collection day s.
No collection of City of San Diego trash recyclables or yard waste on the following City-observed holidays. Physical Properties of waste - Flash Point -40 0C 40 0C - Boiling. CopperBronzeBrass Waste Contaminated With Scheduled Waste Waste Code.
Prosedurlangkah berjaga-jaga semasa mengendalikan membungkus mengangkut dan menstor. Seventh Schedule Regulation 13 INFORMATION. SEVENTH SCHEDULE WASTE TO WHICH SECTIONS 20A1b AND 20B1b OF WASTE DISPOSAL ORDINANCE APPLY In this Schedule- a the first digits of the code number of the.
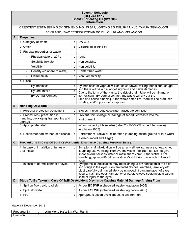
Find Your Trash and Recycling Collections Days Enter part or all of any address in the District of Columbia to see. 13 15 LORONG SG PULUH 1AKU6 TAMAN TEKNOLOGI GEMILANG KAW PERINDUSTRIAN SG PULOH KLANG SELANGOR A Properties. With our free Trash Day app you can view a calendar for your homes collection dates set reminders and get notifications of schedule changes.
It is certified that no demandsfollowing demands of Government are due for recovery. Flux waste containing mixture of organic acids solvents or compounds of. Welcome Jays Trash Service Customers to CARDS Residential Waste Pickup From scheduled curbside trash and recycling pick-up to yard and bulky item removal CARDS Recycling offers.
Waste Label -Latest labeling format for chemical disposal. There are no service changes to Monday Tuesday or Friday. SEVENTH SCHEDULE Article 246 List IUnion List 1.
Nickel-Cadmium rechargeable batteries Rechargeable lithium batteries. Use our Slide Guide to find out how holidays affect your collection schedule. SW 422 Our website is currently under construction.
CRESCENT ENGINEERING M SDN BHD NO. SEVENTH SCHEDULED Regulation 13 INFORMATION SW322 WASTE OF NON-HALOGENATED ORGANIC SOLVENTS pg. Please remember that City.
The Seventh Schedule is popularly referred by the DOE as Waste Card. Spent organic acids with pH less or equal to 2 which are corrosive or hazardous. Find Your Collection Schedule.
If a resident living in a building. 13 15 LORONG SG PULUH 1AKU6 TAMAN TEKNOLOGI. 4 SW 104 - Selplex waste - active component Selenium.
According to the First Schedule. Origin - La boratory experiment or testing 3.
How To Make The Waste Card 7th Schedule For Scheduled Wastes Youtube
How To Make The Waste Card 7th Schedule For Scheduled Wastes Youtube
Sekitar Synergy Sdn Bhd How To Make The Waste Card 7th Schedule For Scheduled Wastes
Waste Card 409 Pdf Vomiting Water
Seventh Schedule Waste Card Sw 305 Pdf Water Pollution
Scheduled Waste Labelling Code Guide And Common Mistake Innatech Waste Management Labuan Sdn Bhd
Ijerph Free Full Text In Search Of Factors Negatively Affecting Vaccine Immunity To Pertussis In Preschool Children Before The Administration Of The First Booster Html
How To Make The Waste Card 7th Schedule For Scheduled Wastes Youtube
How To Make The Waste Card 7th Schedule For Scheduled Wastes Youtube

No comments for "waste card seventh schedule"
Post a Comment